






PROJECT
Threshold House
CLIENT
Private
DATE
2008
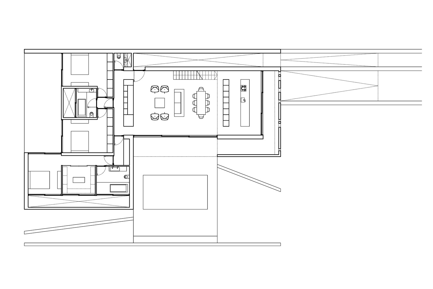
Situated at the liminal zone between urban density and rural expanse, Threshold House is a residence that explores the duality of shelter and openness. The building’s monolithic form is punctuated by large openings that frame distant views of the sea and surrounding landscape, while solid surfaces shield the interior from the street, cultivating a sense of quiet introspection.
A mezzanine volume, rising subtly above the main mass, acts as a periscope—offering elevated glimpses of the horizon and reinforcing the house’s dialogue with its context. The most private functions—bathrooms, kitchen, and walk-in closet—are tucked into glazed patios, allowing light and a sense of exteriority without compromising privacy.
The entrance ramp anchors the building to the site, emphasizing its slight elevation and the floating effect of its base. The architectural language is one of restraint and clarity: a pure geometric envelope animated by the tension between enclosure and exposure. The result is a spatial experience that is both grounded and ethereal, urban and elemental.